Bolig Nytt og urbant i Sandefjord

Næring på gateplan gir levende sentrum. Over bygges urbane leiligheter.

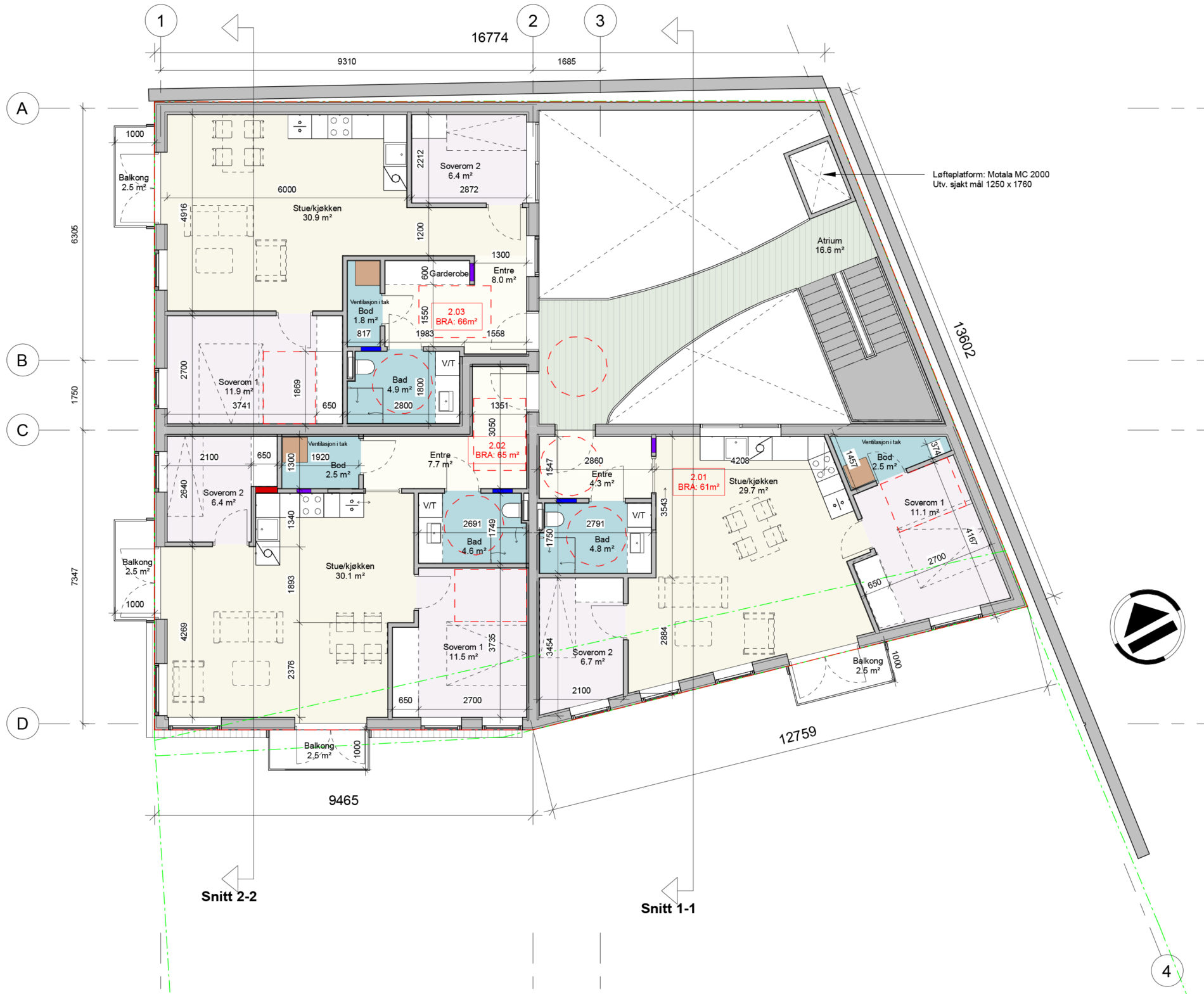
I Skolegata i Sandefjord har denne hjørnetomten ventet på utvikling i mange år. Nå skjer det. Vi har tegnet næringslokaler på gateplan med urbane og arealeffektive leiligheter i andre og tredje etasje. Beskrivende stikkord kan være sentralt, urbant, nytt og moderne med felles areal innerst i tomten med trapp, heis og ekstra dagslys inn i bygget.

På tomten har det stått et eldre trehus. Rundt er byen fornyet. Hjørnetomten har leilighetsbygg på begge sider. Nå skal også denne utvikles med planlagt byggestart i 2023.

Her snakker vi urbane leiligheter med effektivt utnyttet areal.

Bygget har fasadeliv på to kanter. Veggene mot nabobyggene er tette. Vi åpner hjørnet innerst med trapp og heis. En ekstra gevinst er at det grepet åpner for ekstra dagslys inn i bygget.

Se flere prosjekter