Mandal videregående skole ble samlokalisert i 1996. Nær 30 år senere meldte nye behov seg.
Mandal videregående skole er en kombinert videregående skole. Det har den vært siden 1992. Skolen er en sammenslåing av tidligere Mandal gymnas, Mandal handelsskole, Mandal yrkesskole og AMO-senteret. I 1996 ble skolen geografisk samlet på ett sted og ble et levende sentrum og arena for læring og arbeidsplass for nærmere 900 elever, 120 pedagoger og 40 andre ansatte.
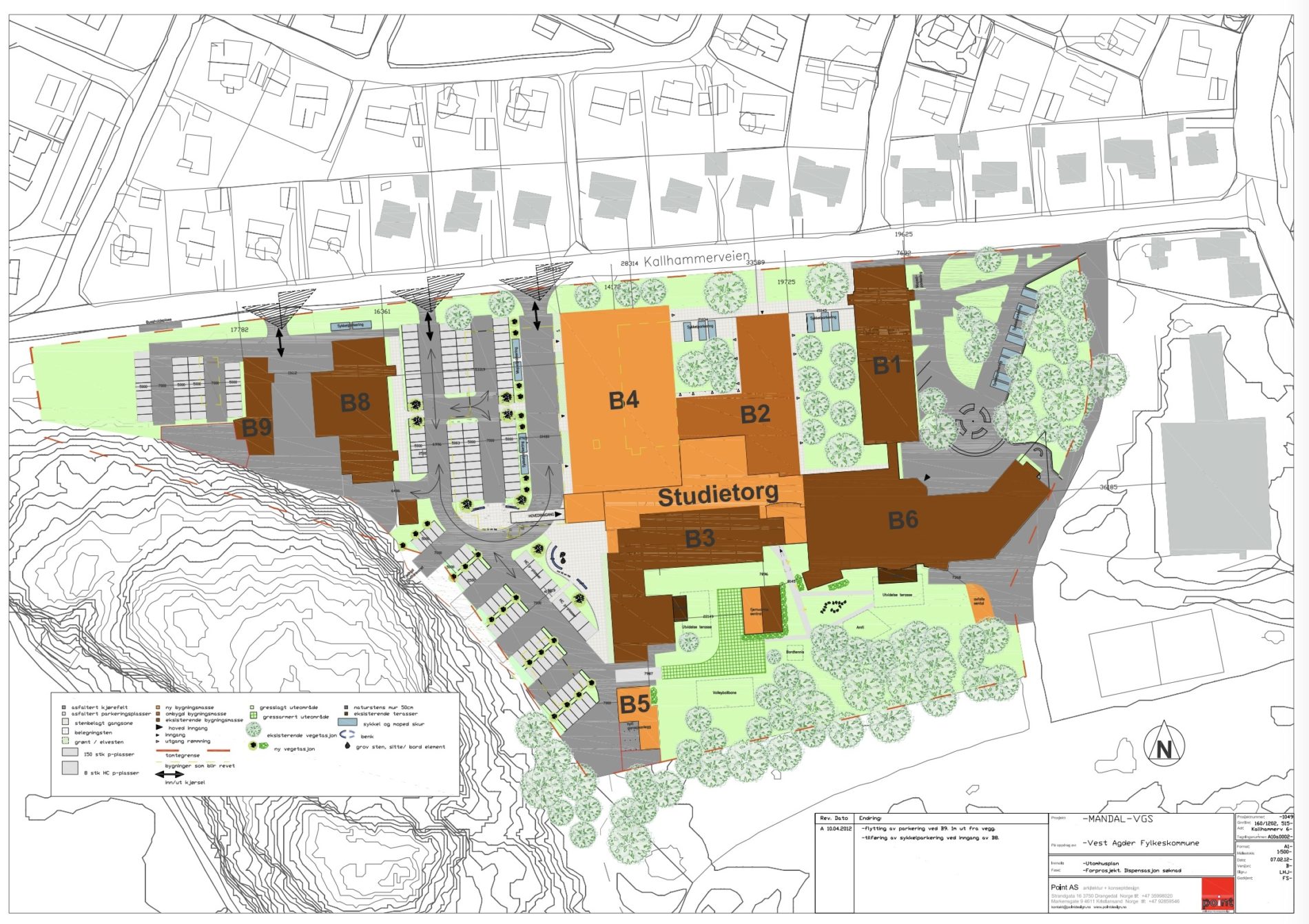
Skolen besto av mange ulike og i hovedsak separate bygg. Vi la til rette og tegnet inn flere nybygg for mange ulike skolelinjer med ulike funksjoner både for elever og administrasjon. Inn kom også auditorium, teorilokaler, praksislokaler som verksteder, areal for egne studier og vrimleområde.
Vi knyttet sammen eksisterende bygg og nye blant annet med et nytt studietorg og gjennomgående glasstak. Vi ønsket gjennom ulike grep både å legge til rette for moderniseringen etter nærmere 30 års bruk og skape en helhet.
Uteområdet tok vi også tak i og forbedret både med parkeringsløsninger og ulike oppholdsarealer.
Her kan du se noen eksempler (bildene) som viser noe av prosessen fra den tidlige starten med enkle skisser, en 3D og utenomhusplanen.






