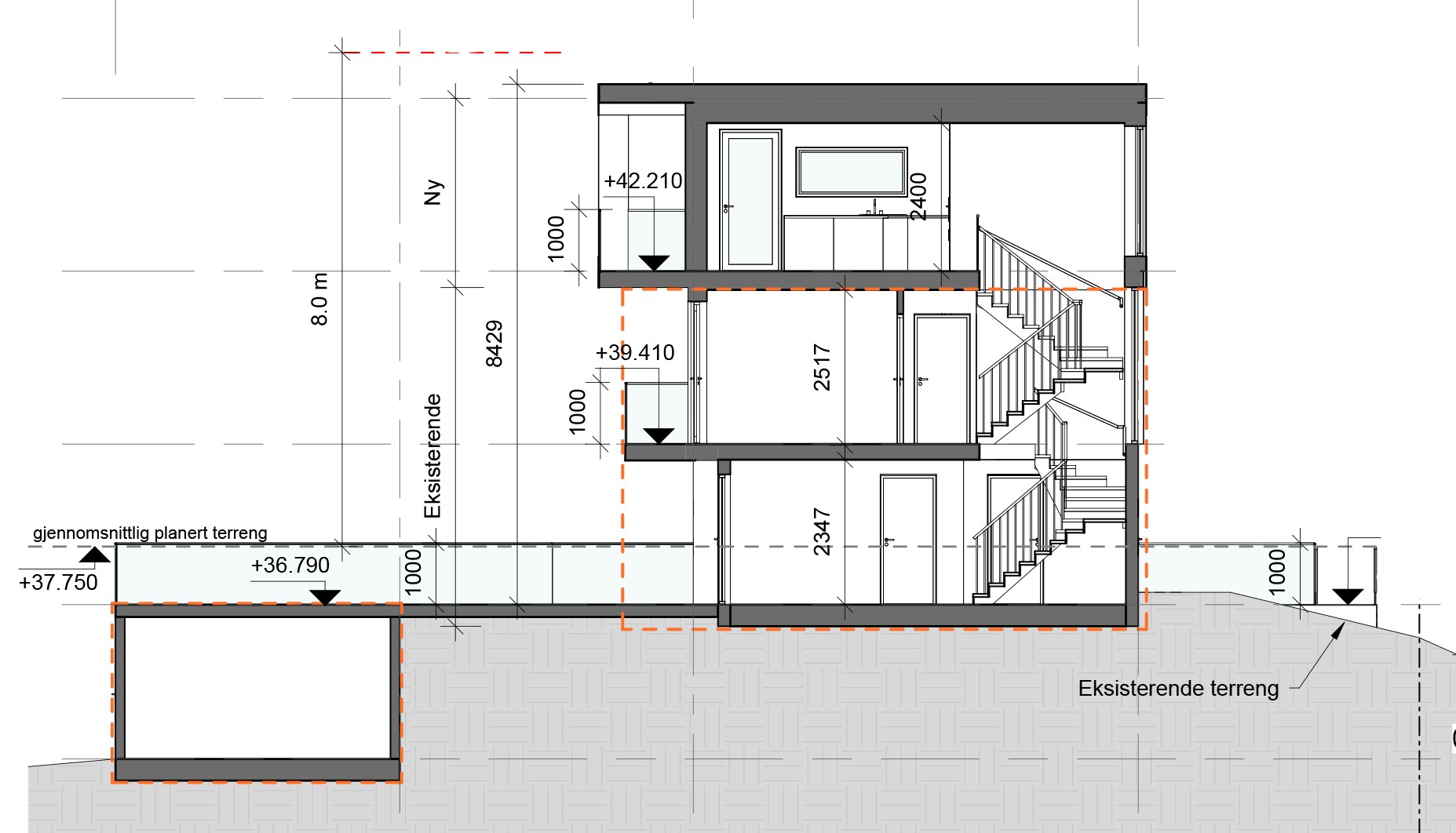
Forvandlingen av huset fra 50-tallet blir total. Prosjektet innebærer riving, rehabilitering og nybygg.
I Husebyveien i Sandefjord er det et godt etablert boligområde. Der har vi tilrettelagt for fullstendig forvandling. Villaen fra 50-tallet skal delvis rives. Dagens kalde loft erstattes med en ny etasje.
Rehabiliteringen blir total. Alt blir tatt tak i, samtidig med at alt som kan bevares og fortsatt brukes, skal bli stående og flyte inn i den nye og moderne villaen helt sømløst.
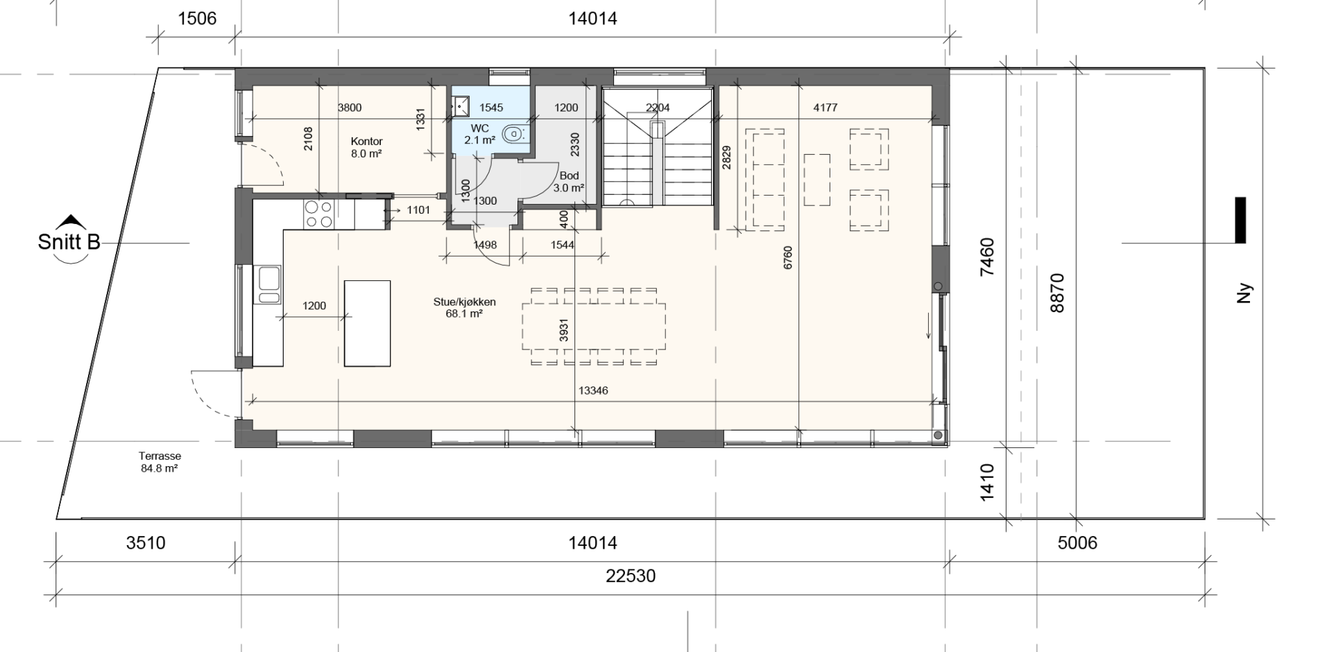
Ferdigstilt blir boligen ny og moderne med store vindusflater og et tydelig design med klar identitet.




