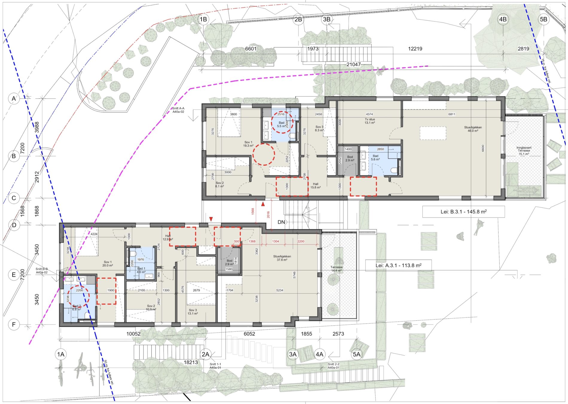
Fem gode boliger med skjermede uteplasser i Lystadsvingen i Sandefjord.
Boligene bygges i to separate og sammenhengende bygg i rolige og attraktive Lystad i Sandefjord.
Byggene er tilpasset omgivelsene. På Lystad er det mye småskala bebyggelse. Vi har lagt vekt på at de nye byggene skal passe inn i omgivelsene.
Boligene får uteparkering. Vi har tatt hensyn til fylkesveien og laget god skjerming med rolige uteplasser og gode siktlinjer og solforhold. Her bor du nær vannet, bare to kilometer fra bykjernen med alle byens tilbud.
Arkitekturen er moderne. Vi har tegnet rene linjer og overflater og varierende fasader. Det har vært viktig for oss å sikre at byggene kommuniserer godt med småhusbebyggelsen rundt.
I Lystadsvingen har du nærhet til det meste. I bykjernen finner du alt moderne byer tilbyr av uteliv, opplevelser, handel og restauranter. I nærområdet har du barnehage, skole, dagligvarebutikker og Store Bergan idrettsanlegg med fotballbaner og Marumskogen med turstier og lysløype.



