Bolig Fritidsboliger med panoramautsikt og golf på Ulefoss

Fritidsboligene planlegges med panoramautsikt over Norsjø. Flott beliggenhet et golfslag unna det flotte anlegget på Ulefoss.

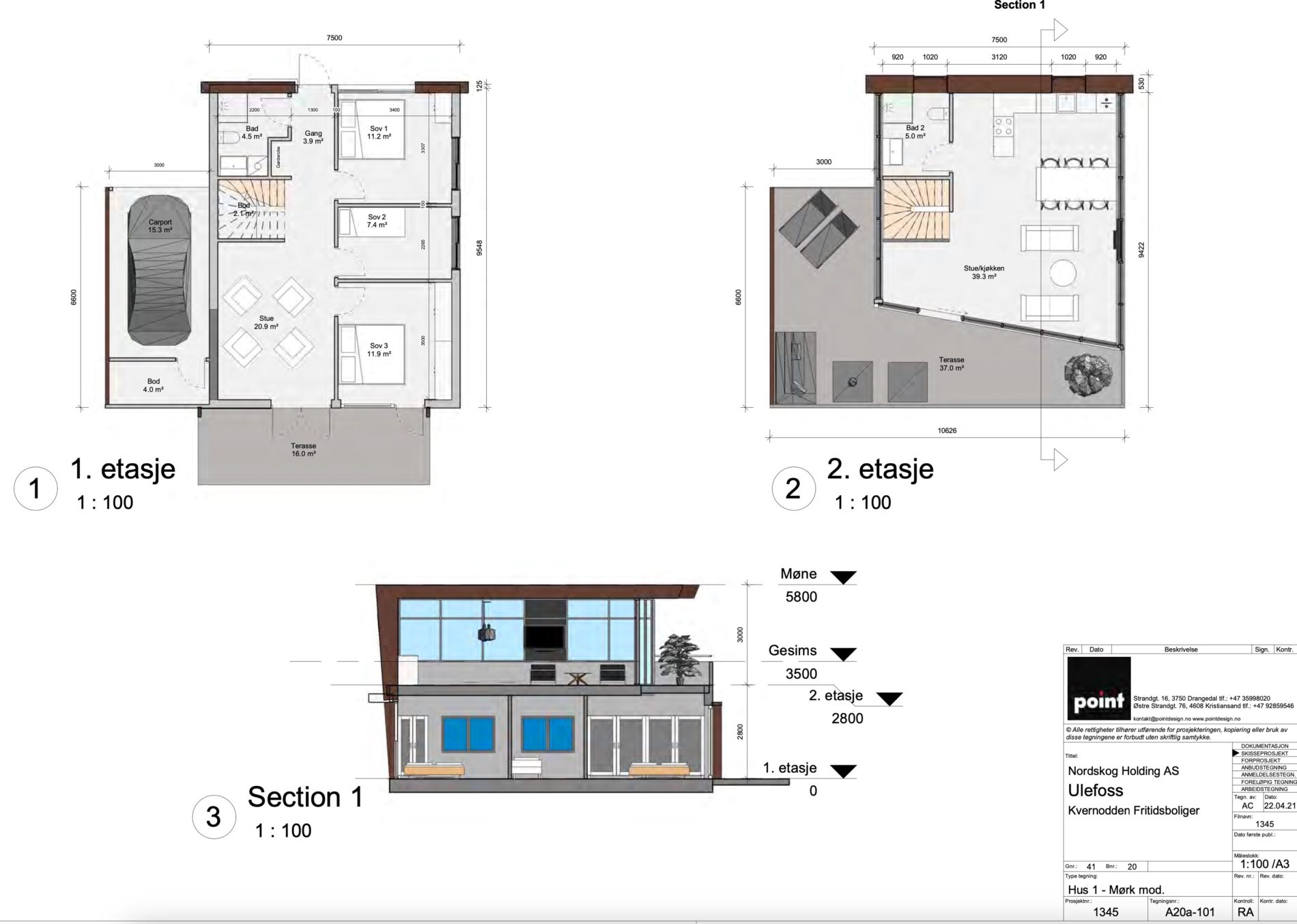
Bart Burgerhoudt og Point har vært med på utbyggingen på Kvernodden i Ulefoss siden starten for snart ti år siden. Et 20-talls boliger er oppført så langt. Det inkludert også livsløpsleiligheter med universell utforming. Nå planlegges et tun for fritidsboliger tilpasset helårsbruk.  Stikkordene her er blant andre kompakt, variasjon og helhetlig med felles uteareal som også inneholder eget svømmebasseng.

– Vi har jobbet sammen med Bart på hele utbyggingen. Vi har samarbeidet på dette og andre prosjekt gjennom flere år. Point er et veldig profesjonelt selskap, er på ballen og leverer godt, sier styreleder Hans Nordskog i Kvernodden AS.

Ulefoss er et tettsted og administrasjonssenteret i Nome kommune i Vestfold og Telemark. Tettstedet har navn etter Ulefossen der Eidselva løper ut i Norsjø. Kvernodden ligger idyllisk til med strandlinje til Norsjø.

Fritidsboligene skal settes opp på svært solrike tomter. Utsikten blir formidabel. Boligene skal være varierte, men samtidig skal det gjøres med en helhetlig opplevelse og felles tun. Her kommer store terrasser med storslagen utsikt med kort vei også til badestrand og bryggeanlegg.

– Vi snakker om kombinert fritidsbolig og bolig. Det er ikke boplikt i Nome. Kjøperne kan selv velge om de vil bruke boligene som fritidsboliger eller ordinære boliger. Vi bygger med helårsstandard, så kan kjøperne selv velge, sier Nordskog. Området er klargjort med vann, kloakk og fiber. Nå skal alt bare fremføres til hver bolig, så er er det klart for mulig byggestart i 2023.

Se flere prosjekter